Vente appartement à VILLENAVE D ORNON (33140)

Référence : TAPP962897


130 000

VILLENAVE D ORNON

39 m²

2 pièces

Description du bien

Exclusivité

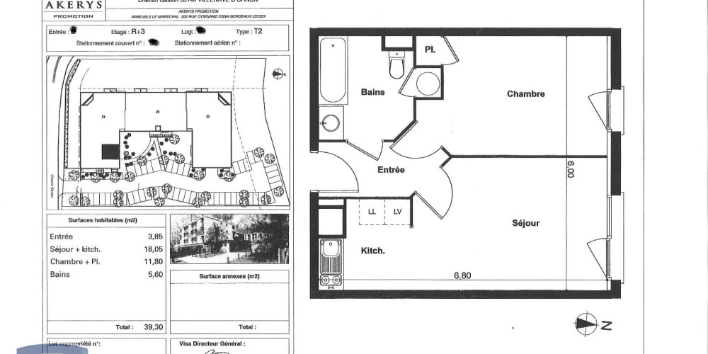
VENTE d'un appartement T2 (39 m²) au dernier étage à Villenave-d'Ornon, idéal investissement ! - À VENDRE : Appartement T2 à Villenave-d'Ornon, pour investissement locatif, vendu loué. Situé au dernier étage d'une résidence calme, cet appartement de 39 m² offre un cadre de vie agréable et pratique. Construit en 2011, il bénéficie d'une modernité et d'un confort appréciables.L'appartement se compose d'un séjour de 17,94 m², d'une chambre spacieuse, d'une salle de bain fonctionnelle et d'une kitchenette. Le chauffage est individuel, assuré par des convecteurs électriques, garantissant une gestion optimale de votre consommation énergétique. De plus, l'immeuble est équipé d'un ascenseur, facilitant l'accès au dernier étage.Pour les amateurs de cyclisme, un local à vélo est à disposition, et un emplacement de parking couvert est inclus, un atout indéniable dans cette zone. La sécurité est également renforcée grâce à un interphone et un digicode.Le loyer mensuel est de 553,70 €, avec des charges de 34 €, soit un total de 587,70 € par mois. Les charges annuelles s'élèvent à 800 €, offrant une gestion prévisible des coûts. La résidence est idéalement située, avec un accès facile aux transports en commun, le bus s'arrêtant juste devant.Cet appartement est une opportunité à ne pas manquer pour les investisseurs souhaitant acquérir un bien dans un secteur en développement, à proximité du lac de Versein. Ne laissez pas passer cette chance d'investir dans un bien de qualité, offrant à la fois confort et tranquillité. CITYA BURDIGALA vous accompagne tant dans votre projet d'achat, que dans votre future gestion locative. Le bien est soumis au statut de la copropriété , la copropriété comporte 93 lots , la quote-part budget prévisionnel (dépenses courantes) est de 852,00 euros/an. Honoraires à la charge du vendeur. Vous pouvez consulter les barèmes d'honoraires à l'adresse suivante : https://www.citya.com/agences-immobilieres/bordeaux-33063/414 . Montant estimé des dépenses annuelles d'énergie pour un usage standard : entre 540 et 780 euros. Prix moyens des énergies indexés en 2023. Les informations sur les risques auxquels ce bien est exposé sont disponibles sur le site Géorisques : https://www.georisques.gouv.fr

Détails du bien

  • Mandat : exclusif
  • Code postal : 33140
  • Commune : VILLENAVE D ORNON
  • État général : Habitable
  • Surface habitable : 39 m2
  • Nombre de pièces : 2
  • Nombre de chambres : 1
  • Nombre de salle de bain : 1
  • Nombre de parking : 1
  • Cuisine : kitchenette
  • Chauffage : Convecteurs
  • Meublé : non

Ce bien est proposé par

CITYA BURDIGALA

Nous contacter

Diagnostic de performances énergétiques

Diagnostic de performance énergétique

128 KWhEP/m2/an

Gaz à Effet de Serre

4 Kgéq/CO2/an

Montant estimé des dépenses annuelles d'énergie pour un usage standard : non communiqué.
Date de référence des prix de l'énergie utilisés pour établir cette estimation : non communiqué.

CES BIENS PEUVENT VOUS INTÉRESSER