Location appartement à CENON (33150)

Référence : 31229

/ mois
716

CENON

54 m²

2 pièces

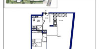
Description du bien

CENONNiché sur les hauteurs de Cenon, au coeur d un quartier résidentiel, entre la place du 10 mai 1981 et le quartier de la Morlette, Le Jardin Majorelle bénéficie d un cadrecalme et reposant. Compromis parfait entre sérénité et dynamisme, son environnement compte de nombreux commerces et services de proximité. Le grand centre commercial Rive Droite les 4 Pavillons, situé à 5 minutes en voiture, offre, quant à lui une multitude de boutiques, restaurants et services de renom.Appartement de type 2 au rez-de-chaussée composé d'une entrée avec placard, cuisine aménagée avec placard, vaste séjour ouvert sur une terrasse et jardin de 44m² environ, une chambre, salle d'eau avec WC.Le chauffage sera assuré par une chaudière murale à condensation et La production d'eau chaude sera assurée par la chaudière gaz.Ascenseur, local à vélo, place de parking.LOGEMENT SOUS REGIME DE DEFISCALISATION PINELPOUR TOUTE DEMANDE DE VISITE, RDV SUR LE SITE PICHET / LOUER, AFIN DE DEPOSER VOTRE CANDIDATURE SUR LE BIEN DE VOTRE SELECTION.Les informations sur les risques auxquels ce bien est exposé sont disponibles sur le site Géorisques : www. georisques. gouv. fr

Détails du bien

  • Mandat : simple
  • Code postal : 33150
  • Commune : CENON
  • Charges : 102 €/mois
  • État général : Habitable
  • Surface habitable : 54 m2
  • Nombre de pièces : 2
  • Nombre de chambres : 1
  • Cuisine : simple
  • Eau chaude : Alimentation en eau chaude non communiquee
  • Meublé : non

Ce bien est proposé par

PICHET IMMOBILIER SERVICES

PICHET IMMOBILIER SERVICES

20-24, AVENUE DE CANTERANNE
33600 PESSAC

09 69 32 37 83
contact@pichet-immobilier-services.fr
http://www.pichet.fr

Nous contacter

CES BIENS PEUVENT VOUS INTÉRESSER