Vente terrain à LE BOUSCAT (33110)

Référence : bouscatBB


280 000

LE BOUSCAT

110 m²

Terrain

Description du bien

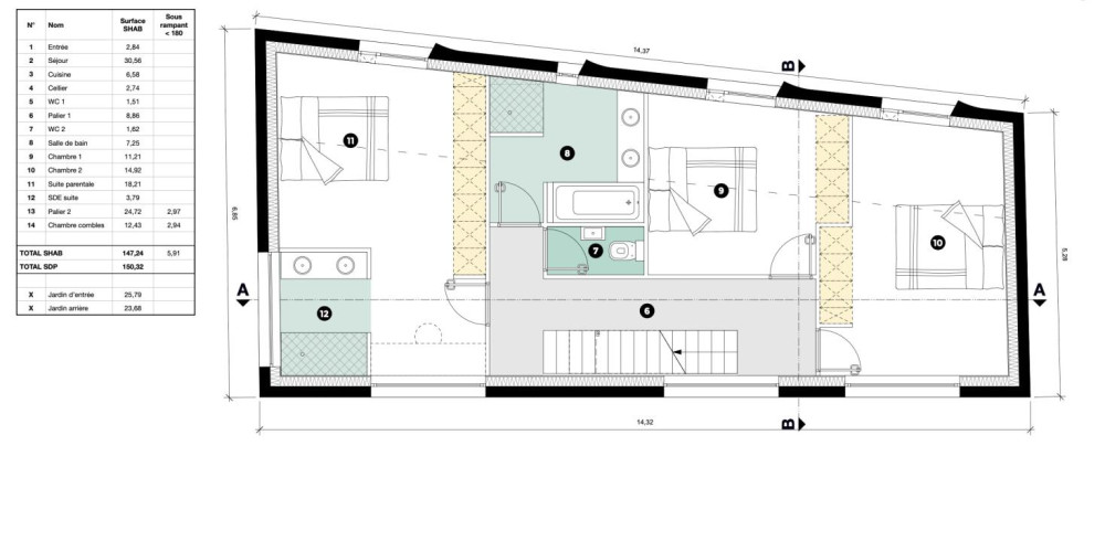
Barrière du Médoc, terrain nu sur un emplacement premium à 200 mètres du Tram Courbet et des commerces de proximité de la barrière du médoc. 600 mètres du Parc Bordelais.Vente terrain nu de 110m² avec emprise de construction possible à 100%, libre de tout constructeur.Etudes de sol et techniques réalisés et payés, géomètre payé et terrain viabilisé.Plusieurs possibilités s'offrent à vous:1) Idéal maison de 120/130m² en R+1 et Combles + jardin de 40m² environ et Garage fonds de parcelle d'environ 15m². Projection et plans à la demande. Les proportions en hauteur seraient celles de la maison d'à côté (confer photos).2) Possibilité également de reprendre le permis de construire accordé et purgé pour une maison contemporaine de 188m² avec garage et grand toit terrasse. Dossier possible en complément avec plan et projection 3D.3) Peut convenir également à un projet pour une activité professionnelle.4) Tout autre projetPour toutes questions n'hésitez pas à nous contacter, de nombreux projets sont envisageables!!

Détails du bien

  • Mandat : simple
  • Code postal : 33110
  • Commune : LE BOUSCAT
  • Surface terrain : 110 m2

Ce bien est proposé par

BORDEAUX IMMOBILIER CONSEILS

BORDEAUX IMMOBILIER CONSEILS

7 RUE DES FAUSSETS
33000 BORDEAUX

0679253610
delphine@bdx-immo.fr
https://www.bdx-immo.fr

Nous contacter