Vente local industriel à BORDEAUX (33300)

Référence : 174895-0V


2 500 000

BORDEAUX

2853 m²

Local industriel

Description du bien

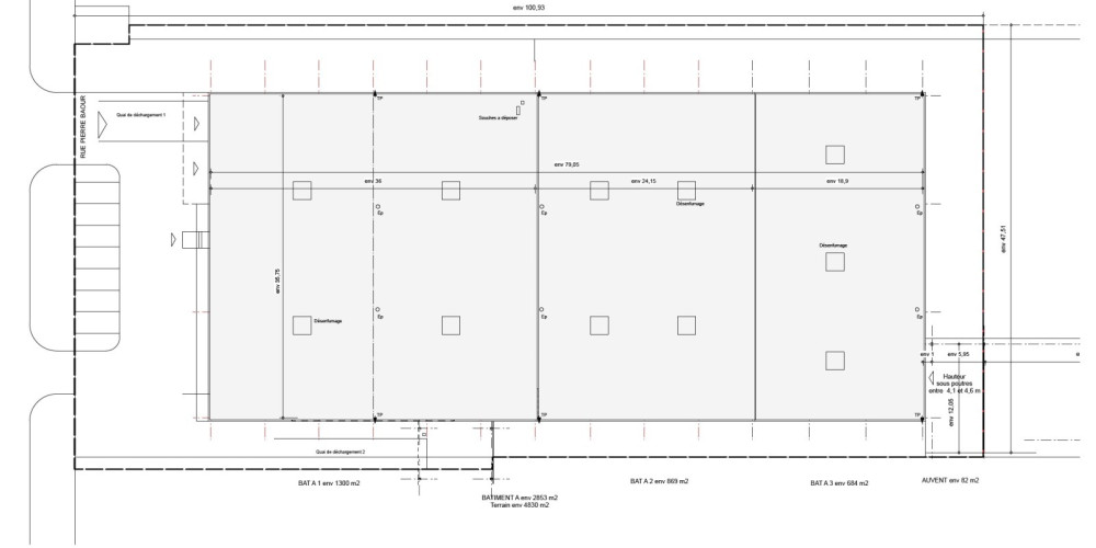
A VENDRE BÂTIMENT INDEPENDANT PROCHE ROCADE ET TRAMWAY : CBRE vous propose de visiter ce bâtiment de 2 850 m² à usage d'entrepôt, bureaux et locaux sociaux sur la commune de Bordeaux. 2 accès quai + portes de plain-pied. Disponibilité immédiate.Idéalement placé à quelques minutes de la rocade, ce bâtiment indépendant est clos peut être exploité en atelier de production ou activité de picking/entrepôt. Des bureaux et locaux sociaux viennent compléter l'ensemble.Le site bénéficie de hauteurs confortables et permet d'accueillir tout gabarit camion et la livraison/expédition est possible par accès quais et plain-pied.Votre implantation actuelle n'est plus adaptée à votre activité et vous souhaitez déménager votre entreprise au plus proche de la Rocade, ce bâtiment est fait pour vous. Pour plus d'informations et visite du site, contactez-moi au 06.62.49.19.66.Au plaisir de vous accompagner dans votre projet immobilier.Sandra BOUTET -

Détails du bien

  • Mandat : simple
  • Code postal : 33300
  • Commune : BORDEAUX
  • Surface utile : 2853 m2
  • Surface totale : 2853 m2

Ce bien est proposé par

CBRE CONSEIL & TRANSACTION

CBRE CONSEIL & TRANSACTION

11-17 Rue Condillac
33000 BORDEAUX

01 53 64 30 85
sandrine.dehayes@cbre.fr
https://immobilier.cbre.fr

Nous contacter

CES BIENS PEUVENT VOUS INTÉRESSER