Vente appartement à ST MEDARD EN JALLES (33160)

Référence : SVAP10001905


120 000

ST MEDARD EN JALLES

36 m²

2 pièces

Description du bien

Exclusivité

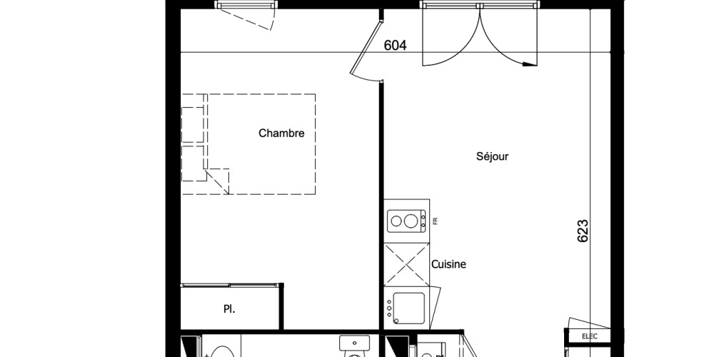
Exclusivité 1001 Adresses. Appartement vendu avec locataire en place. Saint-Médard-en-Jalles, au sein d'une résidence de 2016 parfaitement entretenue et située 12 rue Rénée Lacoude, appartement deux pièces d'environ 36 m2 vendu loué composé d'une pièce à vivre avec cuisine ouverte donnant sur une terrasse de 5,50 m2, une vaste chambre avec placards de rangement, salle d'eau avec WC. Une place de parking couverte et sécurisée est également vendue avec l'appartement. Bail en date du : 11/07/2016, location nue. Loyer : 565,27 EUR par mois charges comprises dont 53,50 EUR de provisions sur charges. Taxe foncière : 757 EUR Charges annuelles de copropriété : 687,28 EUR. Copropriété de 85 lots à usage d'habitation répartis sur 9 batiments d'un étage. Estimation des coûts annuels d'énergie du logement entre 490 EUR et 700 EUR. Les informations sur les risques auxquels ce bien est exposé sont disponibles sur le site Géorisques : www.géorisques.gouv.fr

Détails du bien

  • Mandat : exclusif
  • Code postal : 33160
  • Commune : ST MEDARD EN JALLES
  • Surface habitable : 36 m2
  • Nombre de pièces : 2
  • Nombre de chambres : 1
  • Cuisine : américaine
  • Eau chaude : Alimentation en eau chaude non communiquee
  • Meublé : non

Ce bien est proposé par

SQUARE & HASHFORD

SQUARE & HASHFORD

6 Rue de la Course
33000 BORDEAUX

05 56 81 18 78
contact@square-hashford.fr
http://www.square-hasford.fr

Nous contacter

Diagnostic de performances énergétiques

Diagnostic de performance énergétique

122 KWhEP/m2/an

Gaz à Effet de Serre

23 Kgéq/CO2/an

Montant estimé des dépenses annuelles d'énergie pour un usage standard : non communiqué.
Date de référence des prix de l'énergie utilisés pour établir cette estimation : non communiqué.

CES BIENS PEUVENT VOUS INTÉRESSER