Vente appartement à MERIGNAC (33700)

Référence : 102


760 000

MERIGNAC

137 m²

5 pièces

Description du bien

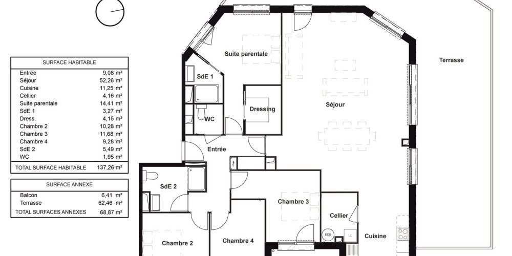
Bel appartement T5 neuf, de 137 m² habitables, ouvrant sur une terrasse de 69 m² au 3ème étage d'un petit immeuble de 22 logements, entre le parc Bourran et la place centrale de Mérignac. Il se compose d'une entrée, d'un grand séjour-cuisine de 64 m², ouvrant sur une terrasse de 62 m²; d'une belle suite parentale avec grand dressing et une salle d'eau, de trois chambres, d'une salle d'eau, d'un cellier et d'un wc. Conforme à la norme RT2012, il est équipé d'un chauffe eau thermodynamique et de radiateurs électriques à fluide caloporteur. Il dispose de deux places de stationnement au sous-sol. Le parc Bourran se trouve à 200 m, le cinéma, le tram et la médiathèque à 800 m. Charges mensuelles 205 euros, taxe foncière 2000 euros, honoraires d'agence à la charge du vendeur. Les risques auxquels ce bien est exposé sont disponibles sur le site Géorisques: www.géorisque.gouv.fr. Frais de notaire du neuf. L'appartement sera disponible au 3ème trimestre 2027.

Détails du bien

  • Mandat : simple
  • Code postal : 33700
  • Commune : MERIGNAC
  • Surface habitable : 137 m2
  • Nombre de pièces : 5
  • Nombre de chambres : 4
  • Nombre de parking : 2
  • Eau chaude : Alimentation en eau chaude non communiquee
  • Meublé : non

Ce bien est proposé par

BERNARD IMMOBILIER PINSAN

BERNARD IMMOBILIER PINSAN

36, RUE GUYNEMER
33320 EYSINES

05 57 10 24 24
contact@agence-bip.fr
http://www.agence-bip.fr

Nous contacter

CES BIENS PEUVENT VOUS INTÉRESSER