Location appartement à MERIGNAC (33700)

Référence : GES01920175-548

/ mois
727

MERIGNAC

44 m²

2 pièces

Description du bien

Exclusivité

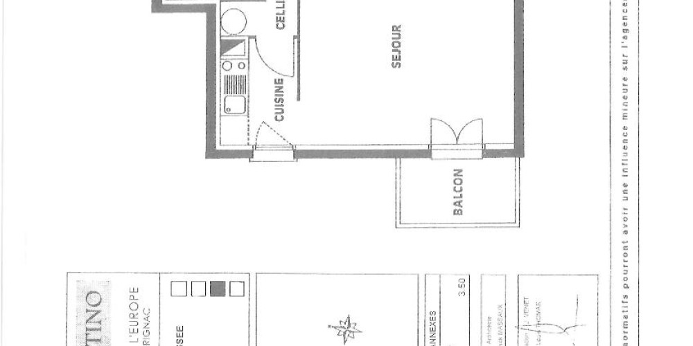
À LOUER : Charmant appartement T2 à Mérignac, idéalement situé pour profiter de la vie urbaine tout en bénéficiant d'un cadre paisible. Ce bien de 44 m² se trouve au deuxième et dernier étage d'un petit immeuble, offrant ainsi une belle tranquillité.L'appartement est composé d'une entrée avec placard, d'un spacieux et lumineux séjour de 23,16 m², véritable cocon où vous pourrez vous détendre après une longue journée, d'une cuisine ouverte et bien agencé avec un cellier qui vous permettra de préparer vos repas avec aisance. Cet espace de vie est parfait pour accueillir vos amis ou simplement profiter de moments de convivialité. Vous apprécierez également le balcon, un atout indéniable pour savourer vos petits-déjeuners au soleil ou profiter d'un moment de détente.Un dégagement dessert une chambre confortable avec un placard, idéale pour se reposer, une salle de bains et des toilettes séparées.Le chauffage individuel électrique par convecteurs vous garantit un confort optimal tout au long de l'année. De plus, vous bénéficierez d'un stationnement extérieur.La résidence est également dotée d'une piscine qui émerveillera petits et grands lors des fortes chaleurs.La résidence peut compter sur la présence d'un gardien et les parties communes extérieures sont sous vidéo surveillance pour la sécurité de tous.Logement soumis à étude de dossier par l'Assurance Loyers Impayés.N'attendez plus pour visiter ce bien qui pourrait devenir votre nouveau chez-vous ! Contactez nous pour plus de renseignements Citya Burdigala 05.57.14.30.73. Le bien est soumis au statut de la copropriété. Loyer de 727,47 euros par mois charges comprises dont 58,00 euros par mois de provision pour charges (soumis à la régularisation annuelle). Soit avec Assurance Habitation et Assistance* ( 21.00 euros ) : 748,47 euros. Les honoraires charge locataire sont de 588,30 euros ( soit 13,12 euros/m² ) dont 135,87 euros pour état des lieux ( soit 3,03 euros/m² ). Vous pouvez consulter les barèmes d'honoraires à l'adresse suivante : https://www.citya.com/agences-immobilieres/bordeaux-33063/414#bareme-location Montant estimé des dépenses annuelles d'énergie pour un usage standard : entre 760 et 1 080 euros. Prix moyens des énergies indexés en 2021. Les informations sur les risques auxquels ce bien est exposé sont disponibles sur le site Géorisques : https://www.georisques.gouv.fr. *Service facultatif. Contribution annuelle "attentats" non comprise. Voir conditions en agence.

Détails du bien

  • Mandat : exclusif
  • Code postal : 33700
  • Commune : MERIGNAC
  • Charges : 58 €/mois
  • État général : Habitable
  • Surface habitable : 44 m2
  • Nombre de pièces : 2
  • Nombre de chambres : 1
  • Cuisine : kitchenette
  • Chauffage : Convecteurs
  • Meublé : non

Ce bien est proposé par

CITYA BURDIGALA

Nous contacter

Diagnostic de performances énergétiques

Diagnostic de performance énergétique

168 KWhEP/m2/an

Gaz à Effet de Serre

6 Kgéq/CO2/an

Montant estimé des dépenses annuelles d'énergie pour un usage standard : non communiqué.
Date de référence des prix de l'énergie utilisés pour établir cette estimation : non communiqué.

CES BIENS PEUVENT VOUS INTÉRESSER