Location appartement à LORMONT (33310)

Référence : GES04900067-548

/ mois
770

LORMONT

63 m²

3 pièces

Description du bien

Exclusivité

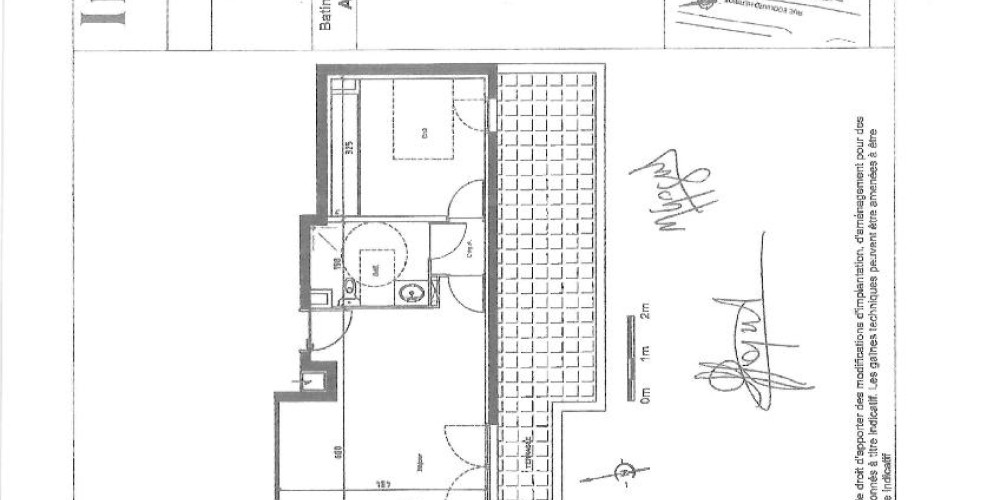
À LOUER : Appartement récent T3 situé dans la résidence Les Passerelles à Lormont, 33310. Ce bien spacieux offre une surface habitable de 63 m², idéal pour une petite famille ou un couple à la recherche de confort et de modernité. L'appartement se compose de trois pièces, dont deux chambres lumineuses, parfaites pour se reposer après une longue journée. Le séjour, agréable et accueillant, donne accès à une grande terrasse de 45m2, un atout indéniable pour profiter des journées ensoleillées et des soirées tranquilles. La cuisine est aménagée, offrant un espace fonctionnel pour préparer vos repas. Le chauffage est individuel, assuré par un système à gaz avec radiateurs, garantissant une chaleur agréable tout au long de l'année. De plus, l'appartement est situé au quatrième étage d'un immeuble avec ascenseur, facilitant l'accès à votre logement. Pour votre confort, un parking en sous-sol est également disponible, vous permettant de stationner votre véhicule en toute sécurité. La résidence est bien entretenue et dispose d'un local poubelle pour plus de commodité. Ne manquez pas cette opportunité de vivre dans un cadre agréable et pratique. Dossier soumis à étude assurance loyer impayés.Pour plus d'informations ou pour organiser une visite, n'hésitez pas à nous contacter. Tel location : 05.57.14.30.73. Le bien est soumis au statut de la copropriété. Loyer de 770,43 euros par mois charges comprises dont 59,00 euros par mois de provision pour charges (soumis à la régularisation annuelle). Soit avec Assurance Habitation et Assistance* ( 24.00 euros ) : 794,43 euros. Les honoraires charge locataire sont de 820,17 euros ( soit 13,00 euros/m² ) dont 191,16 euros pour état des lieux ( soit 3,03 euros/m² ). Vous pouvez consulter les barèmes d'honoraires à l'adresse suivante : https://www.citya.com/agences-immobilieres/bordeaux-33063/414#bareme-location Montant estimé des dépenses annuelles d'énergie pour un usage standard : entre 680 et 970 euros. Prix moyens des énergies indexés en 2021. Les informations sur les risques auxquels ce bien est exposé sont disponibles sur le site Géorisques : https://www.georisques.gouv.fr. *Service facultatif. Contribution annuelle "attentats" non comprise. Voir conditions en agence.

Détails du bien

  • Mandat : exclusif
  • Code postal : 33310
  • Commune : LORMONT
  • Charges : 59 €/mois
  • État général : Habitable
  • Surface habitable : 63 m2
  • Nombre de pièces : 3
  • Nombre de chambres : 2
  • Nombre de parking : 1
  • Cuisine : aménagée
  • Chauffage : Radiateur
  • Meublé : non

Ce bien est proposé par

CITYA BURDIGALA

Nous contacter

Diagnostic de performances énergétiques

Diagnostic de performance énergétique

99 KWhEP/m2/an

Gaz à Effet de Serre

19 Kgéq/CO2/an

Montant estimé des dépenses annuelles d'énergie pour un usage standard : non communiqué.
Date de référence des prix de l'énergie utilisés pour établir cette estimation : non communiqué.

CES BIENS PEUVENT VOUS INTÉRESSER