Location appartement à BORDEAUX (33100)

Référence : GES06590262-548

/ mois
660

BORDEAUX

42 m²

1 pièces

Description du bien

Exclusivité

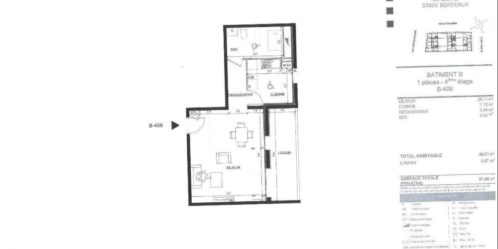
EXCLUSIVITÉEn location : découvrez cet appartement d'une pièce principale, de 42,21 m² localisé à BORDEAUX (33000) rue des Queyries.Il comporte une grande pièce principale donnant sur balcon, salle d'eau et cuisine séparée non équipée. L'appartement est équipé d'un chauffage collectif.On trouve des établissements scolaires (de la maternelle au lycée) dans la commune.SERVICE LOCATION: 0557143073. Le bien est soumis au statut de la copropriété. Loyer de 660,35 euros par mois charges comprises dont 80,00 euros par mois de provision pour charges (soumis à la régularisation annuelle). Soit avec Assurance Habitation et Assistance* ( 21.00 euros ) : 681,35 euros. Les honoraires charge locataire sont de 548,73 euros ( soit 13,00 euros/m² ) dont 127,90 euros pour état des lieux ( soit 3,03 euros/m² ). Vous pouvez consulter les barèmes d'honoraires à l'adresse suivante : https://www.citya.com/agences-immobilieres/bordeaux-33063/414#bareme-location Montant estimé des dépenses annuelles d'énergie pour un usage standard : entre 213 et 288 euros. Prix moyens des énergies indexés en 2021. Zone soumise à encadrement des loyers. Le loyer de base du bien proposé est de 580,35 euros, le loyer de référence majoré (fixé par arrêté préfectoral) est de 654,255 eurosLes informations sur les risques auxquels ce bien est exposé sont disponibles sur le site Géorisques : https://www.georisques.gouv.fr. *Service facultatif. Contribution annuelle "attentats" non comprise. Voir conditions en agence.

Détails du bien

  • Mandat : exclusif
  • Code postal : 33100
  • Commune : BORDEAUX
  • Charges : 80 €/mois
  • État général : Habitable
  • Surface habitable : 42 m2
  • Nombre de pièces : 1
  • Cuisine : simple
  • Chauffage : Radiateur
  • Eau chaude : Collectif
  • Meublé : non

Ce bien est proposé par

CITYA BURDIGALA

Nous contacter

Diagnostic de performances énergétiques

Diagnostic de performance énergétique

69 KWhEP/m2/an

Gaz à Effet de Serre

3 Kgéq/CO2/an

Montant estimé des dépenses annuelles d'énergie pour un usage standard : non communiqué.
Date de référence des prix de l'énergie utilisés pour établir cette estimation : non communiqué.

CES BIENS PEUVENT VOUS INTÉRESSER