Référence : 28785
 
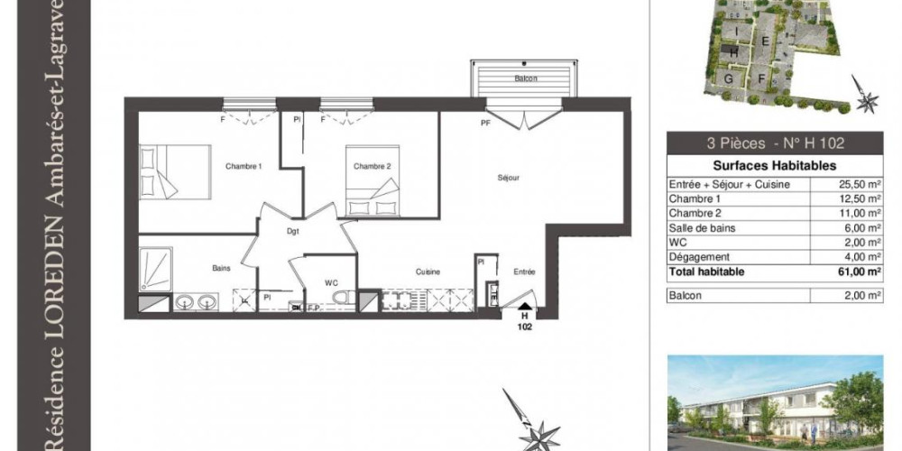
                05.56.07.77.03RESIDENCE RESERVEE UNIQUEMENT A UN PUBLIC SENIORCONTACTEZ NOUS AU NUMERO DE TELEPHONE INDIQUE DANS L ANNONCE- RDV SUR NOTRE SITE INTERNET : PICHET LOCATION / LOUER/ AMBARES -PEB voir lien ci-dessous :https://www.geoportail.gouv.fr/donnees/plan-dexposition-au-bruit-pebAMBARES - LOREDENSituée à Ambares et Lagrave, la résidence LOREDEN propose un cadre de vie idéal dans un paysage verdoyant, avec présence d'un régisseur et club housse. Transports, commerces de proximité. Dédiée au bien-être des habitants, elle propose à ces derniers de se retrouver sur le parcours santé ou le boulodrome. Tous les espaces partagés sont conçus pour favoriser les échanges : espace détente, jardin potager, terrasse, tout a été pensé comme un lieu de rencontre et de promenade pour les habitants.Appartement de type 3 au 1er étage, composé d'une entrée avec placard, cuisine aménagée, vaste séjour ouvert sur un balcon, deux chambres, salle de bain et wc séparés.Le chauffage sera assuré par une chaudière murale à condensation et la production d'eau chaude sera assurée par la chaudière gaz. Volets roulants électriques.Ascenseur, visiophone, local à vélo, 2 places de parking.Les informations sur les risques auxquels ce bien est exposé sont disponibles sur le site Géorisques : www. georisques. gouv. fr
 
        20-24, AVENUE DE CANTERANNE
 
 33600 PESSAC
                Montant estimé des dépenses annuelles d'énergie pour un usage standard : non communiqué. 
                Date de référence des prix de l'énergie utilisés pour établir cette estimation : non communiqué.